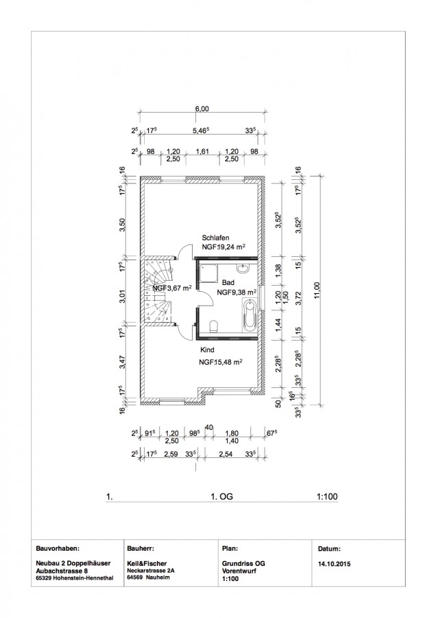
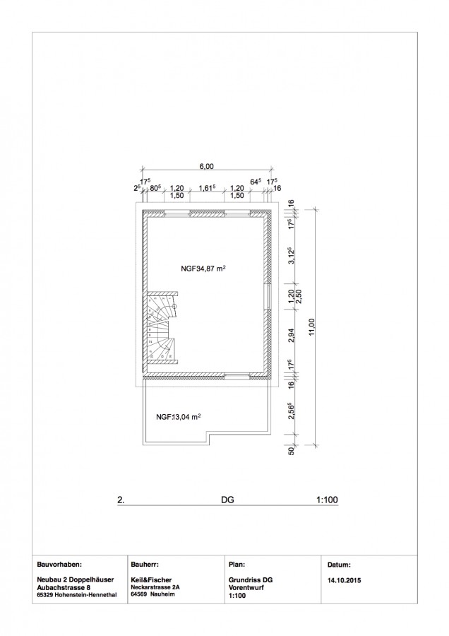
Twittern Modern und exklusiv! Wir bauen für Sie vier Doppelhaushälften in Hennethal Über 130 qm Wohnfläche - 50 qm Keller - Fußbodenheizung - Dachterrasse - Solaranlage - und vieles mehr Grundrisse Grundriss Kellergeschoss Grundriss Erdgeschoss Grundriss Obergeschoss Grundriss Dachgeschoss drucken