Zur Facebook Seite

Familienfreundliches Wohnen in Messel

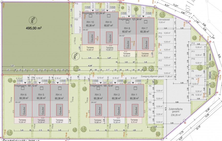
Wir bauen für Sie 10 Reihenhäuser **nur noch ein Haus verfügbar**

Lageplan